特斯拉佛罗里达超级充电站:规模创全球之最
来源:ITBear科技资讯
时间:2024-04-12 16:00:35 459浏览 收藏
你在学习科技周边相关的知识吗?本文《特斯拉佛罗里达超级充电站:规模创全球之最》,主要介绍的内容就涉及到,如果你想提升自己的开发能力,就不要错过这篇文章,大家要知道编程理论基础和实战操作都是不可或缺的哦!
4月7日消息,特斯拉已计划在美国佛罗里达州建设一座规模空前的超级充电站。据悉,这座充电站将装配超过200个充电桩,有望成为全球最大的超级充电站。
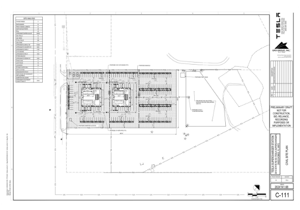
根据特斯拉与奥西奥拉县的项目预申请会议所提交的规划,新的超级充电站将坐落在Yeehaw Junction,博60号州道310号地块,地理位置十分优越,紧邻佛罗里达收费公路193号出口和95号州际公路的交汇点。

根据规划图显示,充电站将配备大约160个V3超级充电桩和40个独立充电桩,以满足不同类型的充电需求。其中还包括8个特别为拖车设计的贯通式车位。据特斯拉爱好者MarcoRPi1透露,该项目会分阶段进行,逐步建设并附设充电桩供公众使用。


此外,场地规划中还提及了最多可容纳4个兆瓦级电池储能装置(Megapack),这些高容量的电池储能系统预计会被安置在配电柜附近,以确保充电站的稳定运行。
特斯拉在今年2月还提出了在加州克恩县建造另一座拥有164个充电桩的超级充电站的构想,其规模也超过了目前运营中的任何超级充电站。在全球范围内,特斯拉已运营的大型超级充电站包括加州的Harris Ranch超级充电站和亚利桑那州的Quartzsite超级充电站,但它们与即将在罗里达州建设的新站相比,规模都显得逊色。
随着电动汽车市场的不断扩大,特斯拉也在逐步开放其超级充电站网络给其他品牌的电动汽车使用。此前,特斯拉已宣布其充电站对福特特斯拉的电动汽车开放,预计未来还将接纳更多品牌的电动汽车,如通用汽车、极星及其母公司沃尔沃等。
同时,特斯拉在加州洛杉矶还有一个独特的项目。那里正在建设一个融合了复古与现代设计的超级充电站,该站不仅包括充电桩,还计划打造一个50年代风格的汽车餐厅和一个露天双屏影院,为车主在充电期间提供休闲娱乐空间。
-
501 收藏
-
501 收藏
-
501 收藏
-
501 收藏
-
501 收藏
-
467 收藏
-
138 收藏
-
141 收藏
-
131 收藏
-
194 收藏
-
363 收藏
-
331 收藏
-
198 收藏
-
444 收藏
-
195 收藏
-
411 收藏
-
438 收藏
-
- 前端进阶之JavaScript设计模式
- 设计模式是开发人员在软件开发过程中面临一般问题时的解决方案,代表了最佳的实践。本课程的主打内容包括JS常见设计模式以及具体应用场景,打造一站式知识长龙服务,适合有JS基础的同学学习。
- 立即学习 543次学习
-
- GO语言核心编程课程
- 本课程采用真实案例,全面具体可落地,从理论到实践,一步一步将GO核心编程技术、编程思想、底层实现融会贯通,使学习者贴近时代脉搏,做IT互联网时代的弄潮儿。
- 立即学习 516次学习
-
- 简单聊聊mysql8与网络通信
- 如有问题加微信:Le-studyg;在课程中,我们将首先介绍MySQL8的新特性,包括性能优化、安全增强、新数据类型等,帮助学生快速熟悉MySQL8的最新功能。接着,我们将深入解析MySQL的网络通信机制,包括协议、连接管理、数据传输等,让
- 立即学习 500次学习
-
- JavaScript正则表达式基础与实战
- 在任何一门编程语言中,正则表达式,都是一项重要的知识,它提供了高效的字符串匹配与捕获机制,可以极大的简化程序设计。
- 立即学习 487次学习
-
- 从零制作响应式网站—Grid布局
- 本系列教程将展示从零制作一个假想的网络科技公司官网,分为导航,轮播,关于我们,成功案例,服务流程,团队介绍,数据部分,公司动态,底部信息等内容区块。网站整体采用CSSGrid布局,支持响应式,有流畅过渡和展现动画。
- 立即学习 485次学习